Отвечаем на вопросы по пожарной безопасности
Попробуйте найти аналогичную тему среди 4819 имеющихся вопросов по пожарной безопасности или
Задайте свой вопрос 
» » 🔥Внутренние стены лестничных клеток

🔥Внутренние стены лестничных клеток

  • 0
2019-04-22 12:30 0
1. Просим пояснить требование абзаца 7 пункта 5.4.16 СП 2.13130.2012 "Обеспечение огнестойкости объектов защиты" : "… При этом расстояние по горизонтали между проемами лестничной клетки и проемами в наружной стене здания должно быть не менее 1,2 м".
Другими словами: расстояние должно быть не менее 1,2 м между проемами лестничной клетки (лестнично-лифтового узла), между оконным проемом в наружной стене, дверным проемом во внутренней стене лестничной клетки и проемами в наружной стене здания (помещений, смежных лестничной клетке, лестнично-лифтовому узлу?
2. Применимы ли требования конца абзаца 9 того же пункта к вышеизложенному: "… При расстоянии между вышеуказанными проемами менее… они должны быть заполнены противопожарными дверями или окнами с пределом огнестойкости не менее EI (E) 30"?
Конкретные ситуации компоновки лестнично-лифтового узла и смежных помещений типовых этажей жилых зданий приложены.
2019-04-22 12:30
  • 0
Николай Морозов
Ответил эксперт:
С точки зрения пожарной безопасности указанный вами лестнично-лифтовый узел состоит из лестничной клетки и лифтовых шахт с лифтовыми холлами.
К лестничным клеткам предъявляются специальные требования, установленные Федеральным законом от 22 июля 2008 года N 123-ФЗ "Технический регламент о требованиях пожарной безопасности"  (ред. от 23.06.2014), СП 2.13130.2012 "Системы противопожарной защиты. Обеспечение огнестойкости объектов защиты"  (ред. от 23.10.2013), СП 1.13130.2009 "Системы противопожарной защиты. Эвакуационные пути и выходы"  (в редакции от 09.12.2010).
Внутренние стены лестничных клеток должны обладать определенным пределом огнестойкости в соответствии с таблицей 21 Федерального закона от 22 июля 2008 года N 123-ФЗ "Технический регламент о требованиях пожарной безопасности"  (ред. от 23.06.2014).
В соответствии с п.5.4.16 СП 2.13130.2012 "Системы противопожарной защиты. Обеспечение огнестойкости объектов защиты"  (ред. от 23.10.2013) стены лестничных клеток должны возводиться на всю высоту зданий и возвышаться над кровлей. В случае если перекрытие (покрытие) над лестничной клеткой имеет предел огнестойкости, соответствующий пределам огнестойкости внутренних стен лестничных клеток, стены лестничных клеток могут не возвышаться над кровлей.
Стены лестничных клеток в местах примыкания к наружным ограждающим конструкциям зданий должны их пересекать или примыкать к глухим участкам наружных стен без зазоров.
В наружных стенах лестничных клеток типа Л1, H1 и Н3 должны быть предусмотрены на каждом этаже окна, открывающиеся изнутри без ключа и других специальных устройств, с площадью остекления не менее 1,2 кв.м. Устройства для открывания окон должны быть расположены не выше 1,7 м от уровня площадки лестничной клетки или пола этажа.
При этом расстояние по горизонтали между проемами лестничной клетки и проемами в наружной стене здания должно быть не менее 1,2 м.
Внутренние стены лестничных клеток типа Л1, Л2, H1 и Н3 не должны иметь проемов, за исключением дверных. Внутренние стены лестничных клеток типа Н2 не должны иметь проемов, за исключением дверных и отверстий для подачи воздуха системы противодымной защиты.
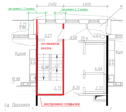
К примеру,

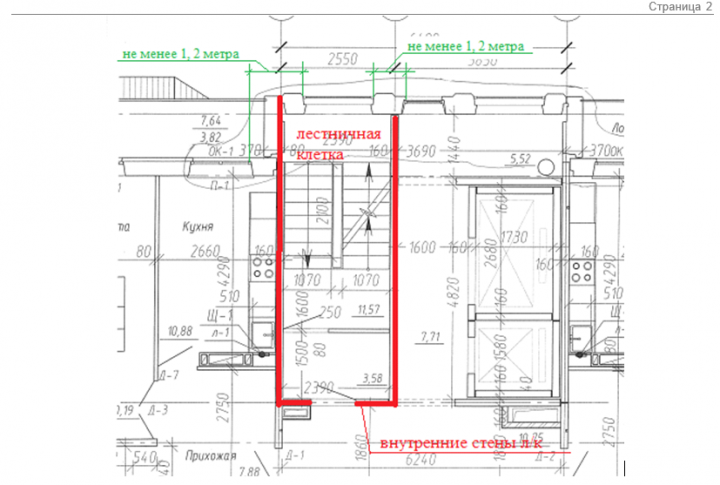
К примеру,

В соответствии с п.5.4.16 СП 2.13130.2012 , если при размещении лестничных клеток в местах примыкания одной части здания к другой внутренний угол составляет менее 135°, необходимо, чтобы наружные стены лестничных клеток, образующие этот угол, имели предел огнестойкости по признакам ЕI и класс пожарной опасности, соответствующий внутренним стенам лестничных клеток.
Допускается предусматривать в указанных стенах лестничных клеток оконные проемы или светопрозрачные конструкции, а также дверные проемы. При этом расстояние по горизонтали от оконных и дверных проемов лестничных клеток до проемов (оконных, со светопрозрачным заполнением, дверных и т.д.) в наружных стенах зданий должно быть не менее 4 м. При расстоянии между вышеуказанными проемами менее 4 м они должны быть заполнены противопожарными дверями или окнами с пределом огнестойкости не менее EI (Е) 30.
К примеру,

Если не можете найти нужное решение, задайте свой вопрос!

Пожалуйста, более подробно опишите Вашу ситуацию (не менее 150зн).
Услуга бесплатна.

Закажите звонок эксперта по пожарной безопасности!
Перезвоним моментально:

Услуга бесплатна.