Отвечаем на вопросы по пожарной безопасности
Попробуйте найти аналогичную тему среди 4821 имеющихся вопросов по пожарной безопасности или
Задайте свой вопрос 
» » 🔥Требования пожарной безопасности к размерам наружной воздушной зоны

🔥Требования пожарной безопасности к размерам наружной воздушной зоны

  • 0
2019-05-16 11:09 0
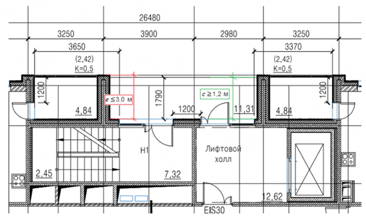
Мы проектируем жилой дом.
Эвакуационная лестница типа Н1.
Конфигурация ЛК выполнена с учётом требований приложения Г СП 7.13130.2013 , и СП 1.13130.2009 "Системы противопожарной защиты. Эвакуационные пути и выходы" 
Лестничная клетка находится на прямом фасаде, сопряжения стен с углом фасада менее 135 гр. нет.
По СП 7.13130.2013 приложения "Г"  наша ЛК попадает под схему "В" (по лоджиям), по параметру "е" у нас 1,8 м, по СП допускается не более 3,0 м.
Верное ли решение заложено в наш проект?
Вопрос возник потому что ведётся спор о глубине балкона воздушной зоны - 1,2 максимум, или можно сделать глубже 1,8 м (например).
2019-05-16 11:09
  • 0
Николай Морозов
Ответил эксперт:
Конструктивные и объемно-планировочные решения лестничных клеток типа Н1 должны соответствовать типовым решения по устройству поэтажных переходов через наружную воздушную зону к незадымляемым лестничным клеткам типа Н1 (п.8.3 , приложение "Г" СП 7.13130.2013 "Отопление, вентиляция и кондиционирование. Противопожарные требования" ) с учетом п.4.4.9 СП 1.13130.2009 "Системы противопожарной защиты. Эвакуационные пути и выходы"  (в редакции от 09.12.2010) и п.5.4.16 СП 2.13130.2012 "Системы противопожарной защиты. Обеспечение огнестойкости объектов защиты"  (ред. от 23.10.2013).
В соответствии с п.4.4.9 СП 1.13130.2009  переходы должны иметь ширину не менее 1,2 м с высотой ограждения 1,2 м, ширина простенка между дверными проемами в наружной воздушной зоне должна быть не менее 1,2 м.
Соответственно, параметр "е" (глубина наружной воздушной зоны) должен быть не более 3,0 метров, а параметр "с" (ширина поэтажного перехода через наружную воздушную зону) должен быть не менее 1,2 метра.
Соответственно, в Вашем случае не нарушаются требования пожарной безопасности в части глубины наружной воздушной зоны и ширины поэтажного перехода через наружную воздушную зону.

Если не можете найти нужное решение, задайте свой вопрос!

Пожалуйста, более подробно опишите Вашу ситуацию (не менее 150зн).
Услуга бесплатна.

Закажите звонок эксперта по пожарной безопасности!
Перезвоним моментально:

Услуга бесплатна.