Отвечаем на вопросы по пожарной безопасности
Попробуйте найти аналогичную тему среди 4821 имеющихся вопросов по пожарной безопасности или
Задайте свой вопрос 
» » 🔥Устройство выхода на кровлю

🔥Устройство выхода на кровлю

  • 0
2019-05-21 09:33 0
Существующее пятиэтажное здание выше 15 м (площадь кровли 860 м) имеет два выхода на кровлю. С первой лестничной клетки выход через дверь размерами 735х1140 мм. Со второй лестничной клетки выход на металлическую площадку (с торца здания), через дверь 800х2100 мм, и с площадки по вертикальной металлической лестнице на кровлю. Двери противопожарные. Прошу Вас объяснить, возможно ли оставить дверь с размерами 735х1140 мм (не соответствующую требованиям п.7.6 СП 4.13130.2013 ), при том, что п.7.3 СП 4.13130.2013  выполнен? И как рассматривать данный выход?
Класс функциональной пожарной опасности: административно-бытовое здание - Ф4.3
2019-05-21 09:33
  • 0
Николай Морозов
Ответил эксперт:
Требования о необходимости устройства выходов на кровли зданий (сооружений) установлены ст.90 "Обеспечение деятельности пожарных подразделений" Федерального закона от 22 июля 2008 года N 123-ФЗ "Технический регламент о требованиях пожарной безопасности"  (ред. от 03.07.2016) и разделом N7 "Обеспечение деятельности пожарных подразделений" СП 4.13130.2013 "Системы противопожарной защиты. Ограничение распространения пожара на объектах защиты. Требования к объемно-планировочным и конструктивным решениям"  (ред. от 18.07.2013).
В соответствии с ч.2 ст.90 Федерального закона от 22 июля 2008 года N 123-ФЗ , п.7.2 СП 4.13130.2013  в зданиях и сооружениях высотой 10 и более метров от отметки поверхности проезда пожарных машин до карниза кровли или верха наружной стены (парапета) должны предусматриваться выходы на кровлю:
- с лестничных клеток непосредственно;
- или через чердак;
- либо по лестницам 3-го типа;
- или по наружным пожарным лестницам.
В соответствии с п.7.3 СП 4.13130.2013  число выходов на кровлю (но не менее чем один выход) и их расположение следует предусматривать в зависимости от класса функциональной пожарной опасности и размеров здания и сооружения:
- не менее чем один выход на каждые полные и неполные 1000 квадратных метров площади кровли здания и сооружения с бесчердачным покрытием для зданий классов Ф4.
Соответственно, в Вашем случае достаточно одного выход на кровлю.
В Вашем конкретном случае имеется только один выход на кровлю, соответствующий в полной мере требованиям, установленным ч.2 ст.90 Федерального закона от 22 июля 2008 года N 123-ФЗ , п.7.2 СП 4.13130.2013 , это выход на кровлю с лестничной клетки непосредственно.
В соответствии с п.7.6 СП 4.13130.2013  выходы с лестничных клеток на кровлю или чердак предусматриваются по лестничным маршам с площадками перед выходом через противопожарные двери 2-го типа размером не менее 0,75x1,5 метра.
Соответственно, в Вашем случае выход на кровлю с лестничной клетки непосредственно должен иметь размеры не менее 0,75x1,5 метра.
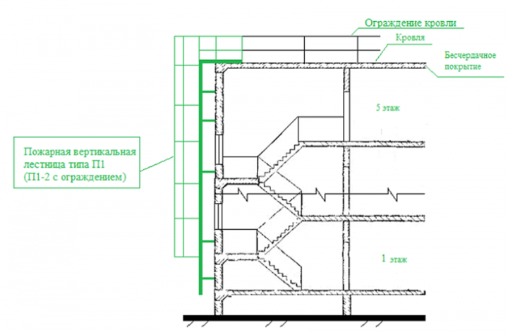
Вертикальная металлическая лестница ведущая на кровлю с площадки, закрепленной с торца здания и имеющей выход с лестничной клетки, не рассматривается как наружная пожарная лестница типа П1, так как не соответствует в полной мере требованиям, установленным ГОСТ Р 53254-2009 "Техника пожарная. Лестницы пожарные наружные стационарные. Ограждения кровли. Общие технические требования. Методы испытаний"  (лестницы типа П1 должны выполняться от уровня земля (допускается размещать нижнюю ступень над уровнем земли на высоте не более 1,5 м) до кровли).
В соответствии с приложением "Б" ГОСТ Р 53254-2009:
В Вашем случае выход на кровлю (указанный ниже в примере), возможно, рассматривать как технологический выход на кровлю, к примеру, для проведения различных технических работ.

Если не можете найти нужное решение, задайте свой вопрос!

Пожалуйста, более подробно опишите Вашу ситуацию (не менее 150зн).
Услуга бесплатна.

Закажите звонок эксперта по пожарной безопасности!
Перезвоним моментально:

Услуга бесплатна.