Отвечаем на вопросы по пожарной безопасности
Попробуйте найти аналогичную тему среди 4821 имеющихся вопросов по пожарной безопасности или
Задайте свой вопрос 
» » 🔥Квалификация выхода из групповой ячейки непосредственно наружу в качестве эвакуационного выхода

🔥Квалификация выхода из групповой ячейки непосредственно наружу в качестве эвакуационного выхода

  • 0
2019-04-24 09:03 0
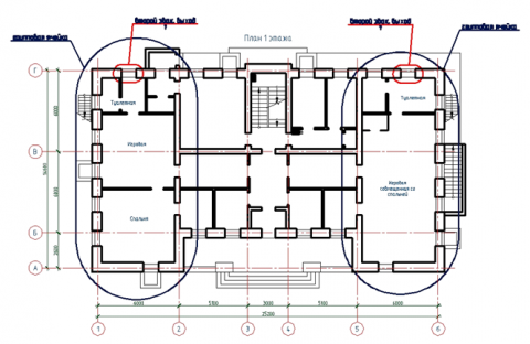
Выполняем проект по устройству вторых эвакуационных выходов из групповых ячеек детского сада. Подскажите, возможно ли устройство выхода через помещение туалетной (рассматриваем варианты, поскольку очень стесненные условия, план первого этажа прилагаю)?

2019-04-24 09:03
  • 0
Николай Морозов
Ответил эксперт:
В соответствии с п.5.2.12 СП 1.13130.2009 групповая ячейка (в данном случае спальня, игровая, туалетная) может рассматриваться как единое помещение.
В соответствии с п.1 ч.3 ст.89 Федерального закона от 22.07.2008 N 123-ФЗ (ред. от 23.06.2014) "Технический регламент о требованиях пожарной безопасности" к эвакуационным выходам из зданий относятся выходы, которые ведут из помещений первого этажа наружу:
а) непосредственно.
В соответствии с п.5.2.14 СП 1.13130.2009 ширина эвакуационных выходов из помещений должна быть не менее 1,2 м при числе эвакуирующихся более 15 чел.
В соответствии с п.5.1.1 СП 1.13130.2009 ширина горизонтальных участков путей эвакуации и пандусов в свету должна быть не менее 1,2 м - для общих коридоров, по которым могут эвакуироваться из помещений более 15 чел.
Соответственно, выход из групповой ячейки (спальня, игровая, туалетная) непосредственно наружу рассматривается как эвакуационный выход при условии, что ширина эвакуационного выхода наружу из помещения групповой ячейки (спальня, игровая, туалетная) не менее 1,2 м, ширина горизонтальных участков путей эвакуации, проходящих через спальню, игровую и туалетную, не менее 1,2 м.

Если не можете найти нужное решение, задайте свой вопрос!

Пожалуйста, более подробно опишите Вашу ситуацию (не менее 150зн).
Услуга бесплатна.

Закажите звонок эксперта по пожарной безопасности!
Перезвоним моментально:

Услуга бесплатна.