Отвечаем на вопросы по пожарной безопасности
Попробуйте найти аналогичную тему среди 4820 имеющихся вопросов по пожарной безопасности или
Задайте свой вопрос 
» » 🔥Лестничные клетки типа Н3 должны иметь выход наружу на прилегающую к зданию территорию непосредственно или через вестибюль

🔥Лестничные клетки типа Н3 должны иметь выход наружу на прилегающую к зданию территорию непосредственно или через вестибюль

  • 0
2019-04-24 10:33 0
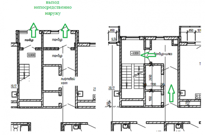
При проектировании в жилом 10-этажном доме высотой более 28 м лестницы типа Н3 возник вопрос, можно ли на первом этаже обойтись без тамбур-шлюза, если выход с лестницы на первом этаже организован согласно приложенному файлу.
2019-04-24 10:33
  • 0
Николай Морозов
Ответил эксперт:
В соответствии с п.5.4.13 СП 1.13130.2009 "Системы противопожарной защиты. Эвакуационные пути и выходы"  (в редакции от 09.12.2010) в зданиях высотой до 50 м с общей площадью квартир на этаже секции до 500 м эвакуационный выход допускается предусматривать на лестничную клетку типа Н2 или Н3 при устройстве в здании одного из лифтов, обеспечивающего транспортирование пожарных подразделений и соответствующего требованиям ГОСТ Р 53296 .
В соответствии со ст.40 Федерального закона от 22 июля 2008 года N 123-ФЗ "Технический регламент о требованиях пожарной безопасности"  (ред. от 03.07.2016) Н3 - лестничные клетки с входом на них на каждом этаже через тамбур-шлюз, в котором постоянно или во время пожара обеспечивается подпор воздуха.
В соответствии с п.2 ч.3 ст.89 Федерального закона от 22.07.2008 N 123-ФЗ  к эвакуационным выходам из зданий и сооружений относятся выходы, которые ведут из помещений любого этажа, кроме первого:
а) непосредственно на лестничную клетку;
б) в коридор, ведущий непосредственно на лестничную клетку;
в) в холл (фойе), имеющий выход непосредственно на лестничную клетку.
В соответствии с п.1 ч.3 ст.89 Федерального закона от 22.07.2008 N 123-ФЗ  к эвакуационным выходам из зданий и сооружений относятся выходы, которые ведут из помещений первого этажа наружу:
а) непосредственно;
б) через коридор;
в) через вестибюль (фойе);
г) через лестничную клетку;
д) через коридор и вестибюль (фойе);
е) через коридор, рекреационную площадку и лестничную клетку.
В соответствии с п.4.4.6 СП 1.13130.2009  лестничные клетки (в том числе типа Н3) должны иметь выход наружу на прилегающую к зданию территорию непосредственно или через вестибюль, отделенный от примыкающих коридоров перегородками с дверями, за исключением случаев, специально оговоренных в нормативных документах по пожарной безопасности. При устройстве эвакуационных выходов из двух лестничных клеток через общий вестибюль одна из них, кроме выхода в вестибюль, должна иметь выход непосредственно наружу.
В вашем случае выполняются требования пожарной безопасности, установленные ст.40 , ст.89 Федерального закона от 22 июля 2008 года N 123-ФЗ , п.4.4.6 СП 1.13130.2009.

Если не можете найти нужное решение, задайте свой вопрос!

Пожалуйста, более подробно опишите Вашу ситуацию (не менее 150зн).
Услуга бесплатна.

Закажите звонок эксперта по пожарной безопасности!
Перезвоним моментально:

Услуга бесплатна.