Отвечаем на вопросы по пожарной безопасности
Попробуйте найти аналогичную тему среди 4821 имеющихся вопросов по пожарной безопасности или
Задайте свой вопрос 
» » 🔥Окна в простенке между дверными проемами в наружной воздушной зоне к незадымляемой лестничной клетке типа H1 - не допускаются

🔥Окна в простенке между дверными проемами в наружной воздушной зоне к незадымляемой лестничной клетке типа H1 - не допускаются

  • 0
2019-05-14 11:38 0
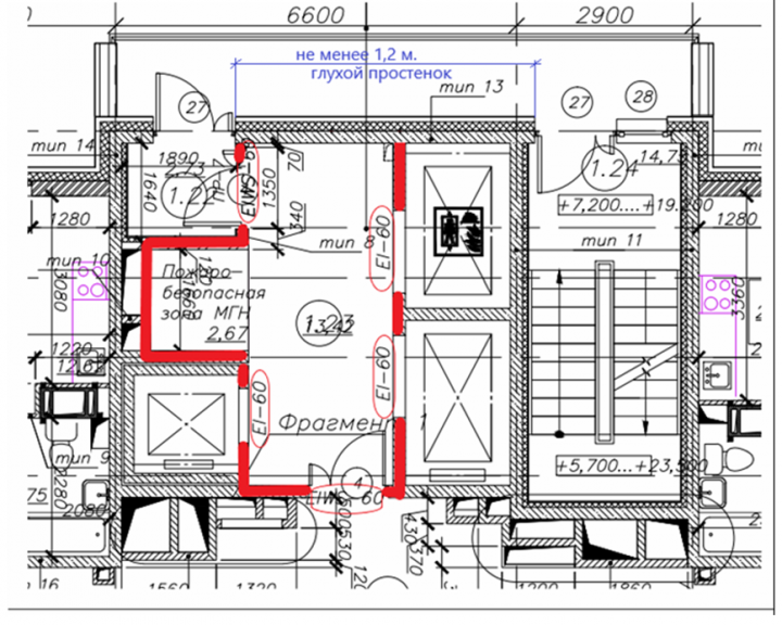
Многоквартирный жилой дом (22 этажа).
Лифтовый холл с окном в наружной стене, с зоной безопасности для МГН, с выходом в наружную воздушную зону (3 лифта, один из которых для перевозки пожарных подразделений). Вопрос: каким должно быть окно?

2019-05-14 11:38
  • 0
Николай Морозов
Ответил эксперт:
В настоящий момент при проектировании, строительстве, капитальном ремонте, реконструкции, техническом перевооружении, изменении функционального назначения, монтаже объектов защиты (зданий, сооружений, инженерных систем, систем противопожарной защиты) применяются:
- Федеральный закон от 22 июля 2008 года N 123-ФЗ "Технический регламент о требованиях пожарной безопасности" (ред. от 29.07.2017);
- нормативные документы, включенные в Перечень документов в области стандартизации, в результате применения которых на добровольной основе обеспечивается соблюдение требований Федерального закона от 22 июля 2008 года N 123-ФЗ "Технический регламент о требованиях пожарной безопасности", утвержденный Приказом Росстандарта от 16.04.2014 N 474 (ред. от 25.02.2016);
- нормативные документы, включенные в Перечень национальных стандартов, содержащих правила и методы исследований (испытаний) и измерений, в том числе правила отбора образцов, необходимые для применения и исполнения Федерального закона "Технический регламент о требованиях пожарной безопасности" и осуществления оценки соответствия, утвержденный распоряжением Правительства РФ от 10 марта 2009 года N 304-р (в ред. от 11.06.2015);
- Федеральный закон от 30 декабря 2009 года N 384-ФЗ "Технический регламент о безопасности зданий и сооружений" (ред. от 02.07.2013);
- нормативные документы, включенные в Перечень национальных стандартов и сводов правил (частей таких стандартов и сводов правил), в результате применения которых на обязательной основе обеспечивается соблюдение требований Федерального закона "Технический регламент о безопасности зданий и сооружений", утвержденный Постановлением Правительства РФ от 26.12.2014 N 1521 (ред. от 07.12.2016).
В настоящий момент к нормативным документам по пожарной безопасности относятся:
- СП 7.13130.2013 "Отопление, вентиляция и кондиционирование. Противопожарные требования";
- ГОСТ Р 53296 - 2009 "Установка лифтов для пожарных в зданиях и сооружениях. Требования пожарной безопасности";
- СП 1.13130.2009 "Системы противопожарной защиты. Эвакуационные пути и выходы" (в редакции от 09.12.2010);
- СП 2.13130.2012 "Системы противопожарной защиты. Обеспечение огнестойкости объектов защиты" (ред. от 23.10.2013).
В настоящий момент к нормативным документам обязательного применения в области безопасности зданий и сооружений относится (перечень, утвержденный Постановлением Правительства РФ от 26.12.2014 N 1521 (ред. от 07.12.2016)):
- СП 59.13330.2012 "СНиП 35-01-2001 "Доступность зданий и сооружений для маломобильных групп населения", а именно Разделы 1 (пункты 1.1-1.6), 2, 4 (пункты 4.1.2-4.1.11, абзацы первый - пятый пункта 4.1.12, пункты 4.1.14-4.1.16, абзац первый пункта 4.1.17, пункты 4.2.1-4.2.4, 4.2.6, 4.3.1, 4.3.3-4.3.5, 4.3.7), 5 (пункты 5.1.1-5.1.3, абзацы первый - третий и пятый пункта 5.1.4, абзац первый пункта 5.1.5, пункты 5.1.6-5.1.8, 5.2.1-5.2.4, 5.2.6-5.2.11, 5.2.13, абзацы первый и второй пункта 5.2.14, пункты 5.2.15-5.2.17, абзац первый пункта 5.2.19, пункты 5.2.20-5.2.32, абзац второй пункта 5.2.33, пункты 5.2.34, 5.3.1-5.3.9, 5.4.2, 5.4.3, 5.5.1, 5.5.2, абзац первый пункта 5.5.3, пункты 5.5.4-5.5.7), 6-8, приложение Г (в настоящий момент обязательные разделы и пункты СП 59.13330.2012 должны применяться без внесенных изменений, так как в перечень включен СП 59.13330.2012 без изменений).
Разделы и пункты СП 59.13330.2012 в новой редакции от 21.10.2015г (изменение N 1) будут применяться на обязательной основе с момента внесения СП 59.13330.2012 с изменением N 1 в Перечень национальных стандартов и сводов правил (частей таких стандартов и сводов правил), в результате применения которых на обязательной основе обеспечивается соблюдение требований Федерального закона "Технический регламент о безопасности зданий и сооружений".
В соответствии с п.5.2.29 СП 59.13330.2012 (пункт обязательного применения) зона безопасности должна быть отделена от других помещений и примыкающих коридоров противопожарными преградами, имеющими пределы огнестойкости: стены, перегородки, перекрытия - не менее REI 60, двери и окна - первого типа.
То есть, помещения зон безопасности должны отделяться от смежных помещений и примыкающих коридоров (холлов) внутренними противопожарными стенами с пределом огнестойкости не менее REI 60 либо противопожарными перегородками с пределом огнестойкости не менее EI 60, а в дверных проемах и в оконных проемах (при наличии) в данных внутренних противопожарных стенах и противопожарных перегородках должны устанавливаться противопожарные двери 1-го типа (EI 60) и противопожарные окна 1-го типа (E 60).
Требования, установленные п.5.2.29 СП 59.13330.2012, не распространяются на двери и окна в наружных ограждающих стенах зданий (сооружений).
Вместе с тем, необходимо учитывать следующее.
В настоящий момент конструктивные и объемно-планировочные решения лестничных клеток типа Н1 должны соответствовать типовым решения по устройству поэтажных переходов через наружную воздушную зону к незадымляемым лестничным клеткам типа Н1 (п.8.3, приложение "Г" СП 7.13130.2013) с учетом дополнительных требований, установленных п.4.4.9 СП 1.13130.2009 (ред. от 09.12.2010) и п.5.4.16. СП 2.13130.2012 (ред. от 23.10.2013).
В соответствии с приложением "Г" СП 7.13130.2013:
В настоящий момент типовыми решениями по устройству поэтажных переходов через наружную воздушную зону к незадымляемым лестничным клеткам типа H1 (приложение "Г" СП 7.13130.2013) не определена возможность устройства окон в простенке между дверными проемами в наружной воздушной зоне.
Исходя из этого, возможно, сделать вывод о том, что не должны устанавливаться окна в простенке между дверными проемами в наружной воздушной зоне к незадымляемой лестничной клетке типа H1.
К примеру,     

Если не можете найти нужное решение, задайте свой вопрос!

Пожалуйста, более подробно опишите Вашу ситуацию (не менее 150зн).
Услуга бесплатна.

Закажите звонок эксперта по пожарной безопасности!
Перезвоним моментально:

Услуга бесплатна.