Отвечаем на вопросы по пожарной безопасности
Попробуйте найти аналогичную тему среди 4821 имеющихся вопросов по пожарной безопасности или
Задайте свой вопрос 
» » 🔥Определение необходимых размеров и количества открываемых проемов для естественного проветривания коридора при пожаре

🔥Определение необходимых размеров и количества открываемых проемов для естественного проветривания коридора при пожаре

  • 0
2019-05-14 13:25 0
Не могу найти определения понятий коридора и вестибюля.
При проектировании общественного здания (2 этажа) возник вопрос по противодымной защите.
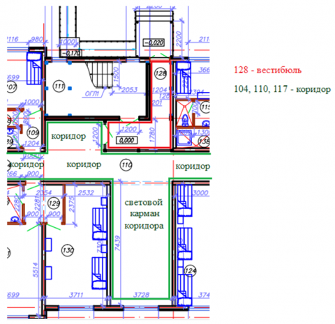
На плане помещения 104 и 117 - коридор, помещение 110 - вестибюль.
В соответствии с п.7.2 СП 7.13130.2013  из коридора 117 (15,5 метров) требуется предусмотреть удаление продуктов горения при пожаре или естественное проветривание, коридор 104 - менее 15 метров, вестибюль под п.7.2 СП 7.13130.2013  не попадает. Зрительно выглядит, что эти помещения представляют собой общий длинный коридор (35 метров), и тогда требуется проектирование дымоудаления.
Затрудняюсь с решением этой ситуации. Прошу помощи.
2019-05-14 13:25
  • 0
Николай Морозов
Ответил эксперт:
В соответствии с подпунктом "в" п.7.2 СП 7.13130.2013 "Отопление, вентиляция и кондиционирование. Противопожарные требования"  удаление продуктов горения при пожаре системами вытяжной противодымной вентиляции следует предусматривать из коридоров без естественного проветривания при пожаре длиной более 15 м в общественных зданиях с числом этажей два и более.
В соответствии со ст.89 Федерального закона от 22 июля 2008 года N 123-ФЗ "Технический регламент о требованиях пожарной безопасности"  (ред. от 03.07.2016) вестибюли, фойе и холлы, как и коридоры, относятся к путям эвакуации.
Соответственно, требования подпункта "в" п.7.2 СП 7.13130.2013  распространяются также и на вестибюли, фойе и холлы, если вестибюли, фойе и холлы относятся к путям эвакуации в конкретном здании.
В соответствии с п.3.12 СП 7.13130.2013  помещение без естественного проветривания при пожаре: помещение (в том числе коридор) без открываемых окон или проемов в наружных ограждающих строительных конструкциях или помещение (коридор) с открываемыми окнами или проемами площадью, недостаточной для наружного выброса продуктов горения, предотвращающего задымление этого помещения при пожаре в соответствии с положениями пункта 8.5 СП 7.13130.2013 .
В соответствии с п.8.5 СП 7.13130.2013  для естественного проветривания коридоров при пожаре следует предусматривать открываемые оконные или иные проемы в наружных ограждениях с расположением верхней кромки не ниже 2,5 м от уровня пола и шириной не менее 1,6 м на каждые 30 м длины коридора.
Необходимые размеры и количество открываемых оконных и других проемов для естественного проветривания при пожаре помещений или коридоров могут быть определены расчетом согласно требованиям пункта 7.4 .
Соответственно, если вестибюль (как путь эвакуации) не имеет соответствующих открываемых окон или иных открываемых проемов (к примеру, дверных) непосредственно в наружных ограждающих строительных конструкциях здания, то данный вестибюль не имеет естественного проветривания при пожаре.
В этом случае вестибюль при длине более 15 метров (протяженность пути эвакуации) необходимо оборудовать механической системой вытяжной противодымной вентиляции.
В вашем конкретном случае необходимо учитывать следующее.
В соответствии с п.4.4.6 СП 1.13130.2009 "Системы противопожарной защиты. Эвакуационные пути и выходы"  (в редакции от 09.12.2010) лестничные клетки должны иметь выход наружу на прилегающую к зданию территорию непосредственно или через вестибюль, отделенный от примыкающих коридоров перегородками с дверями, за исключением случаев, специально оговоренных в нормативных документах по пожарной безопасности. При устройстве эвакуационных выходов из двух лестничных клеток через общий вестибюль одна из них, кроме выхода в вестибюль, должна иметь выход непосредственно наружу.
Соответственно, в целях выполнения требований, установленных п.4.4.6 СП 1.13130.2009 , помещение (128) необходимо считать вестибюлем, отделенным от коридора (110) перегородками с дверьми.
В вашем случае коридор (110) имеет также "световой карман".
Световой карман - помещение с естественным освещением, примыкающее к коридору и служащее для его освещения (п. 3.14 приложения "Б" СП 54.13330.2011 "Свод правил. Здания жилые многоквартирные. Актуализированная редакция СНиП 31-01-2003").
В соответствии с Методическими рекомендациями к СП 7.13130.2013 "Расчетное определение основных параметров противодымной вентиляции зданий"  (ФГБУ ВНИИПО МЧС России, 2013) при расчетах используется общая длина путей эвакуации (коридоров, вестибюлей, фойе, холлов).
В соответствии с подпунктом "а" п.7.4 СП 7.13130.2013  расход продуктов горения, удаляемых вытяжной противодымной вентиляцией, следует рассчитывать в зависимости от мощности тепловыделения очага пожара, теплопотерь через ограждающие строительные конструкции помещений и вентиляционные каналы, температуры удаляемых продуктов горения, параметров наружного воздуха, состояния (положений) дверных и оконных проемов, геометрических размеров для каждого коридора длиной не более 60 м - в соответствии с подпунктами "а"-"г" пункта 7.2 .
В соответствии с п.4.3.3 СП 1.13130.2009  коридоры длиной более 60 м следует разделять противопожарными перегородками 2-го типа на участки, длина которых определяется по [2] (СП 7.13130), но не должна превышать 60 м.
Соответственно, в вашем случае общая длина коридора складывается из длин коридоров 104, 110, 117 и составляет более 15 метров.
К данной длине коридоров суммируется длина вестибюля (128).
То есть общая длина путей эвакуации (коридоров, вестибюля) составляет более 15 метров.
Соответственно, если данный коридор длиной 35,1 м и вестибюль будет оборудован открываемыми оконными или иными открываемыми проемами (к примеру, дверными) в наружных ограждениях с расположением верхней кромки не ниже 2,5 м от уровня пола и шириной не менее 1,6 м на каждые 30 м длины коридора, то возможно не предусматривать устройство систем вытяжной противодымной вентиляции с механическим побуждением из коридоров и вестибюля.
В вашем случае коридор общей длинной 35,1 метра и вестибюль при расчете ширины открываемых проемов будет рассматриваться как единый коридор, состоящий из двух участков длиной по 30 метров каждый (проемы шириной не менее 1,6 м на каждые 30 м длины коридора).
То есть, каждый участок должен иметь минимум по одному открываемому проему шириной не менее 1,6 метра каждый.
При определении необходимых размеров и количества открываемых проемов для естественного проветривания коридоров при пожаре (при определении площади открываемых проемов, достаточной для наружного выброса продуктов горения), возможно, использовать раздел 3.2 "Удаление продуктов горения из смежных с горящим помещений", п.5.1.8 Методических рекомендаций к СП 7.13130.2013 .
Пунктом 8.5 СП 7.13130.2013  установлены требования только о минимально необходимой ширине открываемых проемов для естественного проветривания коридоров при пожаре (не менее 1,6 м на каждые 30 м длины коридора).
То есть итоговые размеры (площадь) открываемых проемов и их количество определяется расчетным методом, но при этом в любом случае общая ширина проемов (либо ширина одного проема) должна быть не менее 1,6 м на каждые 30 м длины коридора (минимально необходимое требование).
В вашем случае в качестве открываемых проемов для естественного проветривания при пожаре коридоров и вестибюля возможно использовать дверные проемы в наружных стенах здания, а также открываемое окно в световом кармане коридора.
Разделение коридора перегородками на отдельные участи длиной менее 15 метров не освобождает от необходимости устройства проемов для естественного проветривания при пожаре либо устройства систем вытяжной противодымной вентиляции с механическим побуждением (при отсутствии естественного проветривания при пожаре).
Если коридор будет разделен на отдельные участки перегородками, то при расчете необходимых размеров и количества открываемых оконных проемов для естественного проветривания при пожаре необходимо будет рассматривать каждый выделенный участок коридора отдельно, что увеличит необходимое количество открываемых проемов по сравнению с коридором такой же длины без устройства перегородок.
Также необходимо учитывать, что в соответствии с п.4.3.3 СП 1.13130.2009  в коридорах на путях эвакуации не допускается размещать встроенные шкафы, кроме шкафов для коммуникаций и пожарных кранов.

Если не можете найти нужное решение, задайте свой вопрос!

Пожалуйста, более подробно опишите Вашу ситуацию (не менее 150зн).
Услуга бесплатна.

Закажите звонок эксперта по пожарной безопасности!
Перезвоним моментально:

Услуга бесплатна.