Отвечаем на вопросы по пожарной безопасности
Попробуйте найти аналогичную тему среди 4821 имеющихся вопросов по пожарной безопасности или
Задайте свой вопрос 
» » 🔥Перегородки конструктивно разделяют коридоры на самостоятельные дымовые зоны

🔥Перегородки конструктивно разделяют коридоры на самостоятельные дымовые зоны

  • 0
2019-05-15 07:41 0
Можно ли общий межквартирный коридор разделить на части?
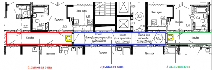
Дом жилой, секционный, многоквартирный, десятиэтажный. В секции 10 квартир, двери которых выходят в межквартирный коридор, далее через лифтовой холл, тамбур-шлюз в лестничную клетку Н3.
В общеквартирном коридоре предусмотрено дымоудаление и компенсация через смежную лифтовую шахту. В прилагаемом файле указаны перегородки, которые делят общеквартирный коридор на части. Какие требования предъявляются к перегородке и дверям, можно ли дымоудаление и компенсацию из отделенных частей коридора решать за счет решеток над дверным проемом и в нижней части полотна?
2019-05-15 07:41
  • 0
Николай Морозов
Ответил эксперт:
В соответствии с подпунктом "а" п. 7.4 СП 7.13130.2013 "Отопление, вентиляция и кондиционирование. Противопожарные требования"  расход продуктов горения, удаляемых вытяжной противодымной вентиляцией, следует рассчитывать в зависимости от мощности тепловыделения очага пожара, теплопотерь через ограждающие строительные конструкции помещений и вентиляционные каналы, температуры удаляемых продуктов горения, параметров наружного воздуха, состояния (положений) дверных и оконных проемов, геометрических размеров для каждого коридора длиной не более 60 м в соответствии с подпунктами "а"-"г" пункта 7.2 СП 7.13130.2013 .
В соответствии с п.4.3.3 СП 1.13130.2009 "Системы противопожарной защиты. Эвакуационные пути и выходы"  (в редакции от 09.12.2010) коридоры длиной более 60 м следует разделять противопожарными перегородками 2-го типа на участки, длина которых определяется по [2] (СП 7.13130.2013 ), но не должна превышать 60 м.
В соответствии с п.7.8 СП 7.13130.2013  длина коридора, приходящаяся на одно дымоприемное устройство, должна составлять не более 45 м при прямолинейной конфигурации коридора.
Соответственно, перегородки (как противопожарные, так и не имеющие нормируемых пределов огнестойкости) в коридорах рассматриваются как конструкции, которые конструктивно разделяют коридоры на самостоятельные дымовые зоны.
То есть, при установке в коридоре перегородок (как противопожарных, так и не имеющих нормируемые пределы огнестойкости), данный коридор начинает рассматриваться как несколько самостоятельных дымовых зон в каждой из которых необходимо устройство самостоятельных дымоприемных устройств.
В настоящий момент Федеральным законом от 22 июля 2008 г. N123-ФЗ "Технический регламент о требованиях пожарной безопасности"  (ред. от 03.07.2016) и СП 7.13130.2013  не определены условия, при которых перегородки, устанавливаемые в коридорах, возможно, не учитывать при определении количества дымовых зон.
То есть, даже при наличии в верхних частях перегородок (над дверными проемами) проемов, заполненных решетками, данные перегородки все равно будут рассматриваться как конструкции, разделяющие коридор на несколько дымовых зон.
Соответственно, при установке во внеквартирном коридоре здания многоквартирного жилого дама (Ф 1.3) двух перегородок любого исполнения, данный внеквартирный коридор будет рассматриваться как 3 (три) конструктивно выделенные дымовые зоны, в каждой из которых необходимо устройство самостоятельных дымоприемных устройств.
В Вашем случае имеется только одна шахта дымоудаления, то есть только одно дымоприемное устройство на этаже.
Соответственно, для обеспечения беспрепятственного удаления опасных факторов пожара из внеквартирного коридора системой вытяжной противодымной вентиляции, необходимо чтобы весь внеквартирный коридор представлял из себя одну (единую) дымовую зону.
В связи с этим, в Вашем конкретном случае установка во внеквартирном коридоре перегородок любого исполнения не допускается, так как данные перегородки будут уменьшать зону действия системы дымоудаления.

Если не можете найти нужное решение, задайте свой вопрос!

Пожалуйста, более подробно опишите Вашу ситуацию (не менее 150зн).
Услуга бесплатна.

Закажите звонок эксперта по пожарной безопасности!
Перезвоним моментально:

Услуга бесплатна.