Отвечаем на вопросы по пожарной безопасности
Попробуйте найти аналогичную тему среди 4821 имеющихся вопросов по пожарной безопасности или
Задайте свой вопрос 
» » 🔥Устройство эвакуационных выходов из цокольного этажа

🔥Устройство эвакуационных выходов из цокольного этажа

  • 0
2019-05-21 11:07 0
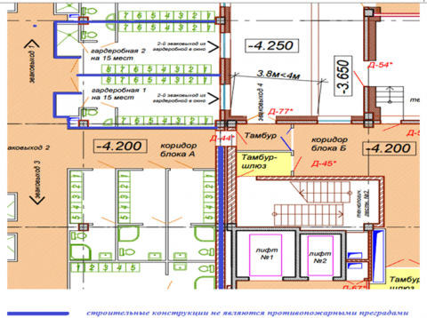
СИТУАЦИЯ: Строящееся здание имеет степень огнестойкости 1, класс конструктивной пожарной опасности С0.
В цокольном этаже блока А размещены гардеробные на 380 мест, распределенные в помещениях по 15 мест. Из цокольного этажа предусмотрены 3 эваковыхода непосредственно наружу с шириной проема в свету по 1,2 м. Из каждого помещения гардеробной на 15 мест предусмотрен второй эваковыход через окно согласно п.4.2.1 СП 1.13130 .
Гардеробная 1 находится на примыкании блока А к блоку Б (одной части здания к другой с внутренним углом менее 135°).
В блоке Б на это примыкание выходят эваковыход 4 и окно коридора. Расстояние между гранями проемов менее 4 м и согласно п.5.4.14 СП 2.13130-2012  проемы должны иметь противопожарное заполнение.
Т.е. возможность размещения 2-го эваковыхода из гардеробной 1 и эваковыхода 4 из блока Б под вопросом.
При проектировании специалист по пожарной безопасности сказал, что мы:
- во-первых: неправильно трактуем п.4.2.1 СП 1.13130 , т.к. из цокольного этажа имеется уже 3 выхода непосредственно наружу, по коридору предусмотрена противодымная вентиляция и в каждом помещении гардеробной нет необходимости устройства 2-го эваковыхода;
- во-вторых: гардеробные и коридоры находятся на уровне земли и п.5.4.14 СП 2.13130-2012  к этим проемам не относятся.
Исходя из этого в проекте в гардеробной 1 и в коридоре блока Б были предусмотрены обычные окна ПВХ, но 2-й эваковыход в окно остался. Дверь эваковыхода 4 противопожарная металлическая.
При экспертизе проекта по этому примыканию вопросов не было.
Сейчас при строительстве появились сомнения в правильности проектного решения. Наш специалист по пожарной безопасности в н. вр. временно отсутствует.
Правильно ли проектное решение по заполнению проемов у примыкания на цокольном этаже блоков А и Б обычным окном ПВХ с открывающейся створкой для 2-го эваковыхода из гардеробной 1 и противопожарной дверью на эваковыходе 4 при расстоянии между гранями этих проемов менее 4 м?
2019-05-21 11:07
  • 0
Николай Морозов
Ответил эксперт:
В соответствии с п.4.2.1 СП 1.13130.2009 "Системы противопожарной защиты. Эвакуационные пути и выходы"  (в редакции от 09.12.2010) не менее двух эвакуационных выходов должны иметь помещения подвальных и цокольных этажей, предназначенные для одновременного пребывания более 15 чел.; в помещениях подвальных и цокольных этажей, предназначенных для одновременного пребывания от 6 до 15 чел., один из двух выходов допускается предусматривать непосредственно наружу из помещений с отметкой чистого пола не ниже 4,5 метра через окно или дверь размером не менее 0,75 x 1,5 метра, а также через люк размером не менее 0,6 x 0,8 метра. При этом выход через приямок должен быть оборудован лестницей в приямке, а выход через люк - лестницей в помещении. Уклон этих лестниц не нормируется.
Помещение - часть объема здания или сооружения, имеющая определенное назначение и ограниченная строительными конструкциями (п.14 ст.2 Федерального закона от 30 декабря 2009 года N 384-ФЗ "Технический регламент о безопасности зданий и сооружений"  (ред. от 02.07.2013)).
Этаж цокольный: этаж, отметка пола помещений которого расположена ниже планировочной отметки земли не более чем на половину высоты помещения (п.3.54 СП 4.13130.2013 "Системы противопожарной защиты. Ограничение распространения пожара на объектах защиты. Требования к объемно-планировочным и конструктивным решениям"  (ред. от 18.07.2013).
Соответственно, не менее двух эвакуационных выходов должно быть непосредственно из каждого помещения именно цокольного этажа, предназначенного для одновременного пребывания от 6 до 15 чел., при этом один из двух выходов допускается предусматривать непосредственно наружу из помещений с отметкой чистого пола не ниже 4,5 метра через окно или дверь размером не менее 0,75 x 1,5 метра, а также через люк размером не менее 0,6 x 0,8 метра. При этом выход через приямок должен быть оборудован лестницей в приямке, а выход через люк - лестницей в помещении. Уклон этих лестниц не нормируется.
В соответствии с п.4.2.2 СП 1.13130.2009  не менее двух эвакуационных выходов должны иметь цокольные этажи при площади более 300 кв.м или предназначенные для одновременного пребывания более 15 человек.
В соответствии с п.4.2.3 СП 1.13130.2009  число эвакуационных выходов с этажа должно быть не менее двух, если на нем располагается помещение, которое должно иметь не менее двух эвакуационных выходов.
Соответственно, в целом цокольный этаж должен иметь не менее двух эвакуационных выходов при площади более 300 м2 или предназначенный для одновременного пребывания более 15 человек.
В соответствии с п.5.4.14 СП 2.13130.2012 "Системы противопожарной защиты. Обеспечение огнестойкости объектов защиты"  (ред. от 23.10.2013), если при размещении противопожарных стен или противопожарных перегородок 1-го типа в местах примыкания одной части здания к другой образуется внутренний угол менее 135°, необходимо принять следующие меры:
- участки наружных стен, примыкающих к противопожарной стене или перегородке, длиной не менее 4 м от вершины угла должны быть класса пожарной опасности К0 и иметь предел огнестойкости, равный пределу огнестойкости противопожарной стены или противопожарной перегородки;
- расстояние по горизонтали между ближайшими гранями проемов, расположенных в наружных стенах по разные стороны вершины угла, должно быть не менее 4 м. При расстоянии между данными проемами менее 4 м они на вышеуказанном участке стены должны иметь соответствующее противопожарное заполнение.
Соответственно, в вашем конкретном случае п.5.4.14 СП 2.13130.2012  применяется только в том случае, если определенные строительные конструкции в местах примыкания одной части здания к другой являются противопожарными стенами 2-го типа (REI 45) или противопожарными перегородками 1-го типа (EI 45).
К примеру,
В соответствии с ч.8 ст.88 Федерального закона от 22 июля 2008 года N 123-ФЗ "Технический регламент о требованиях пожарной безопасности"  (ред. от 13.07.2015) окна в противопожарных преградах должны быть неоткрывающимися, а противопожарные двери и ворота должны иметь устройства для самозакрывания.
Соответственно, оконные проемы, в которых установлены противопожарные окна, не рассматриваются как эвакуационные или аварийные выходы.
Дверные проемы, в которых установлены распашные противопожарные двери, могут рассматриваться как эвакуационные выходы.
Если в вашем случае здание состоит из самостоятельных пожарных отсеков (имеются противопожарные стены 1-го типа (REI 150)), то применяются требования, установленные п.5.4.8 , п.5.4.13 СП 2.13130.2012. 
Уточнение:     
Уточнение к ситуации: объект принят одним пожарным отсеком, т.е. наружные ограждающие конструкции не являются противопожарными преградами. Следовательно, пожарная опасность заполнения проемов не нормируется, т.е. можно применить обычные окна ПВХ.
Ответ:
Если здание состоит из одного пожарного отсека, то к данному зданию не применяются требования, установленные п.5.4.7 , п.5.4.8 , п.5.4.13 СП 2.13130.2012 .
В соответствии с ч.7 ст.87 Федерального закона от 22 июля 2008 года N 123-ФЗ "Технический регламент о требованиях пожарной безопасности"  (ред. от 13.07.2015) пожарная опасность заполнения проемов в ограждающих конструкциях зданий, сооружений (дверей, ворот, окон и люков) не нормируется, за исключением проемов в противопожарных преградах.
В соответствии с п.5.4.4 СП 2.13130.2012  пределы огнестойкости и классы пожарной опасности заполнений проемов в ограждающих конструкциях зданий (дверей, ворот, окон и люков) не нормируются, за исключением специально оговоренных случаев и при нормировании пределов огнестойкости заполнения проемов в противопожарных преградах.
Соответственно, в настоящий момент не нормируются пределы огнестойкости и классы пожарной опасности окон, установленных в оконных проемах ограждающих конструкций (наружных стенах) зданий, за исключением случаев, если наружные стены зданий являются противопожарными стенами 1-го типа (REI 150) или 2-го типа (REI 45).
Если определенные строительные конструкции в местах примыкания одной части здания к другой не являются противопожарными стенами 1-го типа, 2-го типа или противопожарными перегородками 1-го типа, то требования п.5.4.14 СП 2.13130.2012  могут не применяться.
К примеру,

Если не можете найти нужное решение, задайте свой вопрос!

Пожалуйста, более подробно опишите Вашу ситуацию (не менее 150зн).
Услуга бесплатна.

Закажите звонок эксперта по пожарной безопасности!
Перезвоним моментально:

Услуга бесплатна.